140 Bay St 4C
Jersey City, NJ 07302

Scroll to Content

Details

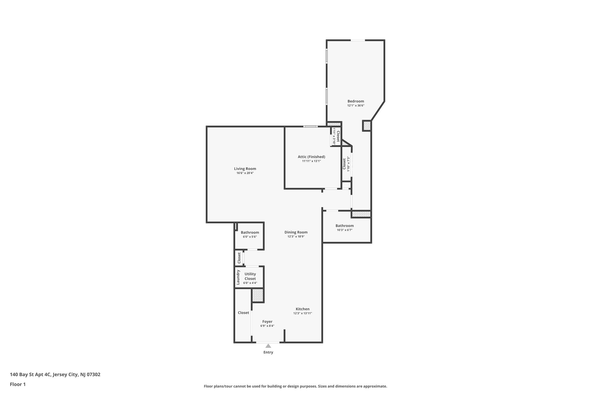
A rare opportunity to own one of the largest authentic loft residences at Cooke Lofts, the reimagined Cooke Warehouse in Downtown Jersey City’s coveted Powerhouse Arts District. Spanning approximately 1,590 square feet, this expansive home offers a scale and volume that is increasingly difficult to find, highlighted by soaring 12-foot concrete ceilings, oversized industrial windows, and a wide-open layout that delivers both flexibility and presence. True warehouse character is showcased throughout with hardwood floors, exposed concrete elements, and abundant natural light, balanced by the comfort of central heating and cooling and an in-unit washer and dryer. The thoughtfully designed layout includes two generously proportioned bedrooms, one-and-a-half bathrooms, and exceptional storage, making the space equally well suited for everyday living, entertaining, or work-from-home needs. Homes of this size and ceiling height are exceptionally limited within the building and throughout Downtown Jersey City, setting this residence apart from more common loft offerings. Cooke Lofts is an elevator building distinguished by its dramatic industrial lobby and a beautifully landscaped common roof deck ideal for relaxing or entertaining. Ideally located just moments from the Grove Street PATH, Newark Avenue Pedestrian Plaza, Jersey City waterfront, Whole Foods, neighborhood coffee shops, fitness studios, dining, shopping, and transportation. A truly special offering within one of Downtown’s most dynamic neighborhoods.

  • $1,195,000
  • 2 Bedrooms
  • 1.5 Bathrooms
  • 1,590 Sq/ft

Images

Videos

Floor Plans

3D Tour

Let's Connect!

Feel free to contact us for more details!